
在石油、化工及能源运输行业中,“鹤管”(又称液体装卸臂)是一个高频出现的词汇。它是液体物料装卸系统中不可或缺的重要设备,凭借的装卸特点,被广泛应用于易燃、易爆、有毒液体的转运作业。本文九游体育网站入口将带你深入了解鹤管的定义、工作原理、结构组成、分类方式、使用与维护标准,以及一个常被问到的问题——鹤
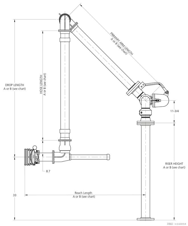
鹤管(Loading Arm)是一种专用于液体或气体介质装卸的机械臂式设备,它通过旋转接头与多段刚性管道实现灵活伸展和密闭连接。
其工作原理是利用平衡装置与旋转接头的组合,使装卸臂能在三维空间内自由运动,从而将储罐、槽车、管道等设备安全连接,实现介质的装入与卸出。在液体流动过程中,鹤管的密封结构可有效防止介质泄漏和挥发,确保操作过程安全、清洁、环保。
相比传统软管式装卸方式,鹤管采用硬连接+旋转关节设计,不仅安全系数高,还能显著提升操作效率与设备寿命。


通过使用鹤管,可实现密闭装卸、节能减排、防止污染,从而提升企业的安全等级与环保合规水平。


这是许多企业常见的疑问。根据《中华人民共和国特种设备安全法》及《特种设备目录(2024年修订版)》的规定,鹤管并不属于特种设备。特种设备主要包括:锅炉、压力容器、压力管道、电梯、起重机械、客运索道、大型游乐设施等。
然而,鹤管往往服务于易燃、易爆、有毒、有腐蚀性的危险化学介质,因此在安全管理上需参照特种设备标准执行。企业应:
换句话说,虽然鹤管不在法律意义上属于特种设备,但在安全管理上,应当“以特种设备标准对待”。
鹤管作为液体装卸系统中的关键设备,凭借安全、高效、环保的特性,在化工、石油、储运等领域中发挥着重要作用。 虽然它不属于特种设备,但在管理要求和安全标准上,完全可以参照特种设备体系执行。 在“安全第一、绿色低碳、智能控制”的行业趋势下,鹤管将继续成为工业装卸环节中不可替代的重要装备。